Pure bending of a cylinder: CAXA elements

This problem contains basic test cases for one or more Abaqus elements and features.

This page discusses:

ProductsAbaqus/Standard

Elements tested

CAXA4n

CAXA4Rn

CAXA8n

CAXA8Rn

(n=1, 2, 3, 4)

Problem description



A hollow cylinder of circular cross-section, inner radius Ri, outer radius Ro, and length 2L is subjected to a bending moment, M, applied to its end planes. For a linear elastic material with Young's modulus E and Poisson's ratio ν, the solutions for stress and displacement are as follows:

σzz=MIrcosθσrr=σθθ=σrz=σrθ=σzθ=0ur=-M2EI[z2+ν(r2-Ri2)]cosθuθ=M2EI[z2-ν(r2-Ri2)]sinθuz=MEIrzcosθ,

where I=π(Ro4-Ri4)/4 is the moment of inertia of the cylinder and r, θ, and z are the cylindrical coordinates.

Only one-half of the structure is considered, with a symmetry plane at z= 0. The form of the displacement solution, which is a quadratic function in both r and z, suggests that a single second-order element should model the structure accurately. The full- and reduced-integration second-order elements do use a single element mesh, but an 8 × 12 mesh is used for the fully integrated first-order elements and a 16 × 24 mesh is used for the reduced-integration first-order elements.

Material:

Linear elastic, Young's modulus = 30 × 106, Poisson's ratio = 0.33.

Boundary conditions:

uz= 0 on the z= 0 plane; at r=Ri on the z= 0 plane, ur at θ= 0° is set equal to ur at θ= 180° with an equation constraint to remove the rigid body motion in the global x-direction.

Loading:

The bending load is simulated by applying a surface traction of the form σzz=MIrcosθ on the z=L plane of the cylinder. This is done by applying the appropriate nonuniform pressure load with a distributed load and defining the variation of the pressure in both the r- and θ-directions with user subroutine DLOAD. In the user subroutine the θ value at each integration point, which is stored in COORDS(3), is expressed in degrees.

Results and discussion

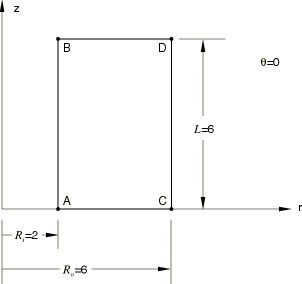
The analytical solution and the Abaqus results for the CAXA8n, CAXA8Rn, CAXA4n, and CAXA4Rn (n=1, 2, 3, or 4) elements are tabulated below for a structure with MI=1 and dimensions L= 6, Ri= 2, and Ro= 6. The output locations are at points A=(Ri,0,0), B=(Ri,L,0), C=(Ro,0,0), and D=(Ro,L,0) on the θ= 0° plane, as shown in the figure on the previous page, and at points E,F,G, and H, which are at the corresponding locations on the θ= 180° plane. The CAXA8n elements match the exact solution precisely.

VariableExactCAXA8nCAXA8RnCAXA4nCAXA4Rn
σzz at A 2 2 2.040 2.102 2.124
ur at A
uz at A
σzz at B 2 2 2 2.098 2.091
ur at B −6 × 10−7 −6 × 10−7 −5.927 × 10−7 −6.000 × 10−7 −6.015 × 10−7
uz at B 4 × 10−7 4 × 10−7 4.164 × 10−7 3.996 × 10−7 3.984 × 10−7
σzz at C 6 6 5.979 5.895 5.877
ur at C −1.76 × 10−7 −1.76 × 10−7 −1.881 × 10−7 −1.757 × 10−7 −1.762 × 10−7
uz at C
σzz at D 6 6 6 5.898 5.908
ur at D −7.76 × 10−7 −7.76 × 10−7 −7.954 × 10−7 −7.757 × 10−7 −7.779 × 10−7
uz at D 1.2 × 10−6 1.2 × 10−6 1.211 × 10−6 1.200 × 10−6 1.203 × 10−6
σzz at E −2 −2 −2.040 −2.102 −2.124
ur at E
uz at E
σzz at F −2 −2 −2 −2.098 −2.091
ur at F 6 × 10−7 6 × 10−7 5.927 × 10−7 6.000 × 10−7 6.015 × 10−7
uz at F −4 × 10−7 −4 × 10−7 −4.164 × 10−7 −3.996 × 10−7 −3.984 × 10−7
σzz at G −6 −6 −5.979 −5.895 −5.877
ur at G 1.76 × 10−7 1.76 × 10−7 1.881 × 10−7 1.757 × 10−7 1.762 × 10−7
uz at G
σzz at H −6 −6 −6 −5.898 −5.908
ur at H 7.76 × 10−7 7.76 × 10−7 7.954 × 10−7 7.757 × 10−7 7.779 × 10−7
uz at H −1.2 × 10−6 −1.2 × 10−6 −1.211 × 10−6 −1.200 × 10−6 −1.203 × 10−6
Note:

The results are independent of n, the number of Fourier modes.

Figure 1 through Figure 4 show plots of the undeformed mesh, the deformed mesh, the contours of ur, and the contours of uz, respectively, for the CAXA4R4 model.

Input files

ecnssfsk.inp

CAXA41 elements.

ecnssfsk.f

User subroutine DLOAD used in ecnssfsk.inp.

ecntsfsk.inp

CAXA42 elements.

ecntsfsk.f

User subroutine DLOAD used in ecntsfsk.inp.

ecnusfsk.inp

CAXA43 elements.

ecnusfsk.f

User subroutine DLOAD used in ecnusfsk.inp.

ecnvsfsk.inp

CAXA44 elements.

ecnvsfsk.f

User subroutine DLOAD used in ecnvsfsk.inp.

ecnssrsk.inp

CAXA4R1 elements.

ecnssrsk.f

User subroutine DLOAD used in ecnssrsk.inp.

ecntsrsk.inp

CAXA4R2 elements.

ecntsrsk.f

User subroutine DLOAD used in ecntsrsk.inp.

ecnusrsk.inp

CAXA4R3 elements.

ecnusrsk.f

User subroutine DLOAD used in ecnusrsk.inp.

ecnvsrsk.inp

CAXA4R4 elements.

ecnvsrsk.f

User subroutine DLOAD used in ecnvsrsk.inp.

ecnwsfsk.inp

CAXA81 elements.

ecnwsfsk.f

User subroutine DLOAD used in ecnwsfsk.inp.

ecnxsfsk.inp

CAXA82 elements.

ecnxsfsk.f

User subroutine DLOAD used in ecnxsfsk.inp.

ecnysfsk.inp

CAXA83 elements.

ecnysfsk.f

User subroutine DLOAD used in ecnysfsk.inp.

ecnzsfsk.inp

CAXA84 elements.

ecnzsfsk.f

User subroutine DLOAD used in ecnzsfsk.inp.

ecnwsrsk.inp

CAXA8R1 elements.

ecnwsrsk.f

User subroutine DLOAD used in ecnwsrsk.inp.

ecnxsrsk.inp

CAXA8R2 elements.

ecnxsrsk.f

User subroutine DLOAD used in ecnxsrsk.inp.

ecnysrsk.inp

CAXA8R3 elements.

ecnysrsk.f

User subroutine DLOAD used in ecnysrsk.inp.

ecnzsrsk.inp

CAXA8R4 elements.

ecnzsrsk.f

User subroutine DLOAD used in ecnzsrsk.inp.

Figures

Figure 1. Undeformed mesh.

Figure 2. Deformed mesh.

Figure 3. Contours of r-displacement.

Figure 4. Contours of z-displacement.